Baugrundstücke
Bauen Sie mit uns in Nickenich.
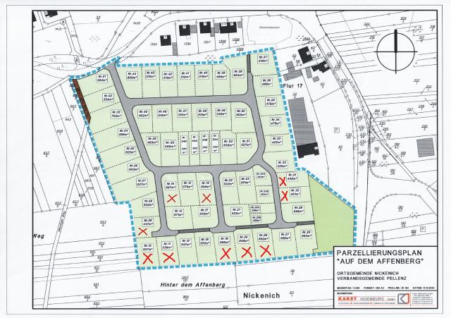
Bauinteressierte ohne eigenes Grundstück können sich über den hinterlegten Parzellierungsplan informieren, welche Grundstücke im neu erschlossenen Baugebiet „Auf dem Affenberg“
und im Baugebiet "Eckertshohl"
in Nickenich über unser Unternehmen verfügbar und mit uns bebaubar sind.
Die verfügbaren Grundstücke in exponierter Lage haben Größen von 420 qm bis 596 qm und sind auf dem Plan durch ein Kreuz kenntlich gemacht.
Bei Interesse und für weitere Informationen melden Sie sich gerne unverbindlich bei Herrn Gerd Görgen unter 0171 2081820 oder über unser Kontaktformular.
Wir freuen uns darauf Sie bei der Verwirklichung Ihres Wohntraums zu unterstützen und zu begleiten.
|
Das Bild zeigt die Parzellen des Neubaugebietes "Eckertshohl" |
Das Bild zeigt die Parzellen des Neubaugeboietes "Auf dem Affenberg" |